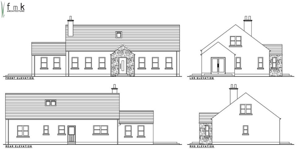
...15.07.25 We have lodged another one of our Customised ECOHomes to Planning, as a dwelling on a farm, outside Toomebridge
This was based on our HouseType 2 Cottage as found at www.ecohomesni.com
The design has been largely customised for the clients, with a centralised stone-clad porch and symmetrical front elevation, as well as a Snug off to the left hand side.
As always this will be another energy efficient family home, featuring 4 Bedrooms, Study, Kitchen, Dining and Living space leading to the Snug!
Get in contact with us today to customise your ECOHome
02825878650
info@fmkltd.com
