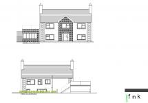
...14.10.2021 This is for an Extension to a dwelling and an attic conversion in the detached garage
FmK Cover a variety of designs these include: Traditional House Designs, Modern House Designs, Home Extensions, Full-House Refurbishments, ECO-Upgrades, ECO Homes, Planning Permission & Planning Approvals
At FmK Architecture, WE can be part of your journey...
Call 025 2587 8650 or email info@fmkltd.com
