+44 (0) 28 2587 8650

Extension To Shop/Filling Station

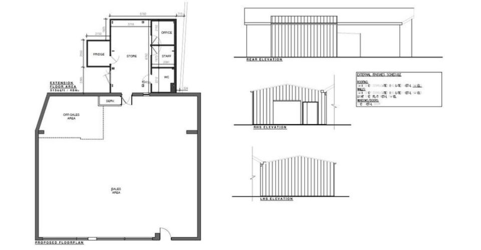
...03.03.23 We have received Another Planning Approval for an Extension to a Shop/Filling Station.

If you are thinking of a commercial project; extension, refurb, change-of-use or new signage perhaps. Give us a call today to discuss your project on 02825878650 or email info@fmkltd.com