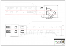
...10.05.2021 FmK have just lodged another Planning Application for an extension to the offices at McBurney Transport near Ballymena
The design has been done to involve the existing office features, such as finishes and the flat roof.
This will include large sections of glazing to provide good levels of natural light inside the offices to give a more pleasant environment to work in
If you have a Commercial, Industrial or Housing Development project, get in touch to discuss your options today by calling 028 2587 8650 or email info@fmkltd.com
#commercial #commercialplanning #commercialarchitecture #planningpermissionni #industrialplanning #industrialbuildingdesign
