...09.06.23 Few updates on some Industrial & commercial projects;
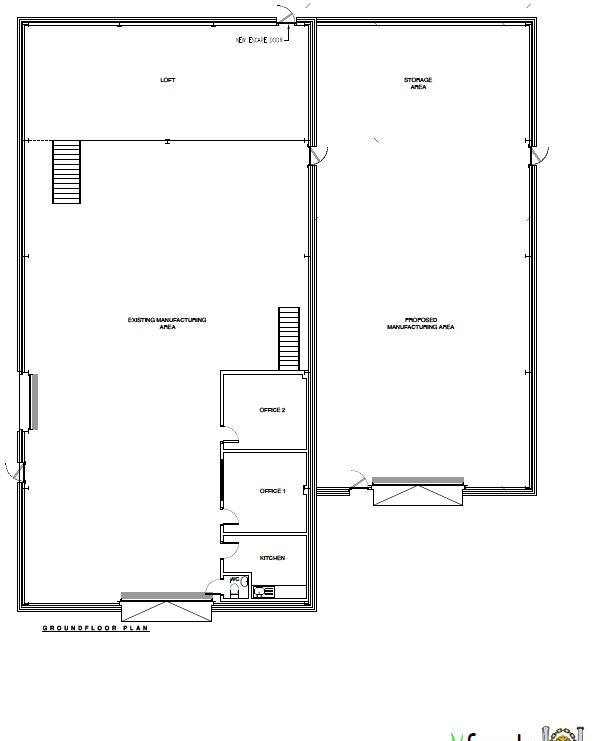
We have just received Planning Approval for an Extension to an existing Industrial Unit near Kilcoo, Co.Down.
We have also been awarded a new planning application for a commercial fit -out/change of use near Galgorm, Ballymena, &
A new detailed fit-out for a commercial unit just outside Ballymena.
FmK also specialise in all type of buildings and units, whether they require scheme design, Planning Permission, Tendering or Construction Supervision.
Give us a call today to discuss your options on 02825878650 or email info@fmkltd.com
#agricultural #farmbuildings #comericalbuildings #industrialbuildings #fitoutsnit #ballymena #northernireland
