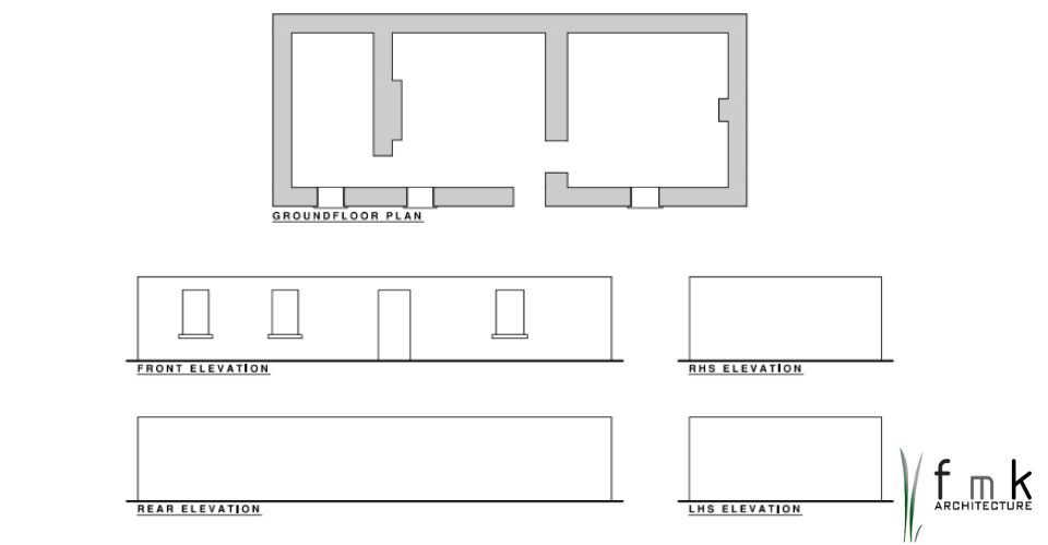
...011.04.24 Here we have a proposed new renovation to an existing cottage near Kilcar, County Donegal, Submitted to Donegal County Council !
Are you thinking of renovating? Maybe you need that little bit bigger space ? Give FmK a call today for all your enquiries & how to get started!
We are happy to help
Call us today to discuss your options
028 2587 8650
info@fmkltd.com
#design&build
