...06.12.2020 FmK have lodged another application for a Dwelling Extension and Renovation project in Templepatrick.✅
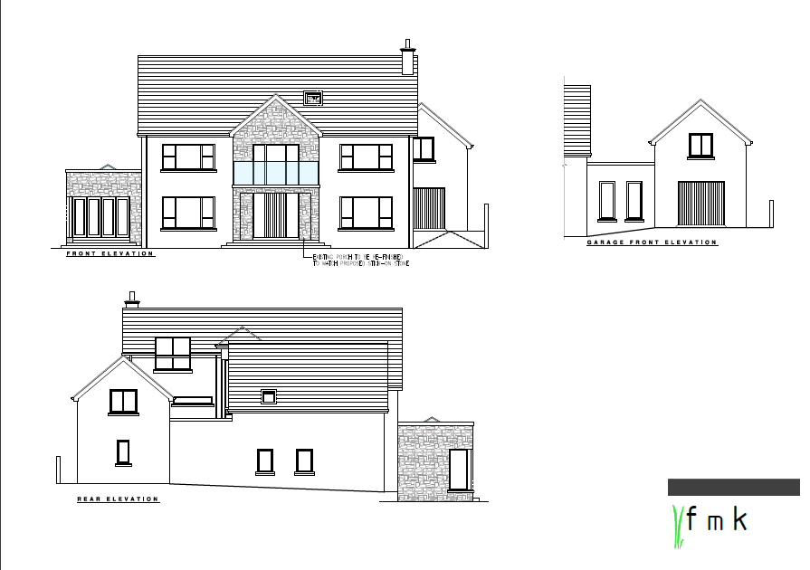
Here we have renovated an existing garage to the rear of the dwelling with additional extensions to the rear of this area to provide additional bedrooms along with a dining room extension to the side of the main house. 😁
There is also a link at the rear of the new extension to a 2 storey garage with a games room on the upper floor. There is a lot going on!👌
Check out more of our home extensions at https://fmkni.com/home-extensions
#houseextensions #homeextensions #niextensions
#planningpermissionni #openplanliving
#openplanlivingdesign #homeoffice #workingfromhome
#niplanningpermission
