-
...15.02.24 This is a modern take on rural dwelling, located on an elevated site with excellent views over Islandmagee & towards Scotland
-
..11.02.24 This home has many features including a split level design, under croft garage and a cinema room!!
What more could you need!!
Let us know what you think!
-
..08.02.24 Yesss you can see that right! Another A Rated FmK Low Energy Home scoring an amazing 98/100 EPC Rating
We are just buzzing for our client
-
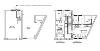
..06.02.24 Planning APPROVED for an empty retail space conversion to 2No. apartments in Ballymena town centre
What a great addition to the town!
-
..04.02.24 Planning has been APPROVED for a garage conversion in Moira
This is an exciting project that allows our client to have more space within their home with the additional bedroom and en-suite!
-
..01.02.24 Lots of progress in our ECOHome -Tiny Home!
A compact 1 bedroom design with a study room with space for visitors to stay!
-
...31.01.24 We are replacing the current farmshed with a new larger shed
There will be more calving pens for the client
Get in touch now to discuss your agricultural farm buildings
028 2587 8650
-
...30.01.24 Out on site seeing our agricultural farm building design.
This farm shed is now complete. It comprises of two silos and plenty of storage for all your agricultural needs.
-
...27.01.24 Back On Site Seeing Our ECO Home House Type 2 Near Antrim
Roof is now complete & air tightness materials are now being installed
-
...27.01.24 Back On Site Seeing Our Low Energy Design Completed in Aghalee!
Air tightness products supplied by ECOHomes Store call 028 2587 8650

